Burradoo Bespoke Home: Modular Craft on Historic Acreage

On rural land in Burradoo, a modular house by Modscape and Modbotics reinterprets the area’s historic manor silhouettes—proving that off-site construction can feel tailored, timeless and deeply grounded in place.

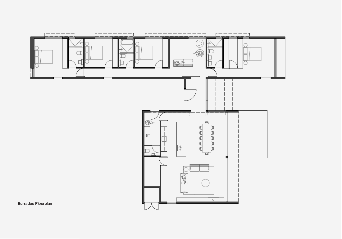
Hidden within the rural landscape of Burradoo, this bespoke modular home quietly challenges the idea that prefabrication must look generic. Designed by Modscape + Modbotics, the 288 m² residence is an award-winning example of how off-site construction can deliver architecture that feels both tailored and timeless.

Set on generous acreage, the house draws from the historic manor houses that define Burradoo’s character. Instead of copying period details, the architects extract a single, powerful gesture: the pitched roof. Here, it becomes a clean, contemporary silhouette—stretched, edited and recomposed to frame views, hold light, and anchor the home in its pastoral setting.

A contemporary manor in modules

The building’s modular structure is almost invisible in daily life. Inside, spaces flow with the calm clarity expected of bespoke architecture: long sightlines, generous glazing, and a sequence of rooms that open to the landscape rather than turning inward.

Living areas are oriented to capture light across the day and to frame the surrounding fields. The pitched roof form translates into vaulted internal volumes and carefully composed ceilings, lending the interiors a sense of quiet grandeur without overwhelming domestic scale.

While the house reads as a single, unified object, it was fabricated off-site in precision-built modules. This approach shortened construction time on the rural property, reduced site disturbance and material waste, and allowed for a high level of finish and detailing before the home even arrived on the land.

Responding to site and heritage

Context is more than a backdrop in this project; it is a design driver. The exterior palette takes its cues from the muted tones of the surrounding paddocks and tree lines, allowing the house to sit gently in the landscape rather than dominating it. The contemporary interpretation of the manor roofline acknowledges local heritage while making clear that this is a home of its own time.

Large openings connect interior life with the outdoors, extending living spaces onto decks and terraces and reinforcing the relationship between house, garden and broader landscape. From a distance, the profile feels familiar—almost archetypal. Up close, the detailing, glazing and precise junctions reveal a very modern construction logic.

Modular thinking for a low-impact future

Burradoo Bespoke Home suggests a different path for rural and edge-of-town development. Instead of expansive builds or imported historical pastiche, it offers an architecture that is:

  • Resource-aware, thanks to off-site fabrication and controlled material use.

  • Deeply contextual, using massing and proportion to resonate with local heritage.

  • Scalable, pointing toward a future in which more bespoke homes could be delivered through refined modular systems.

In the context of The Wave of Sustainable Design, this project reads as a quiet but significant statement: meaningful sustainability does not always announce itself through high-tech façades or experimental forms. Sometimes it is found in the way a roofline remembers the past, in the efficiency of a module, and in the care taken to let a new house feel as though it has always belonged on the land.

Credits

Architect: Modscape + Modbotics

Photographer: Katherine Lu